Статья: Дорожное заграждение, изготовленное из продуктов переработки пластмасс (2024)

Читать онлайн

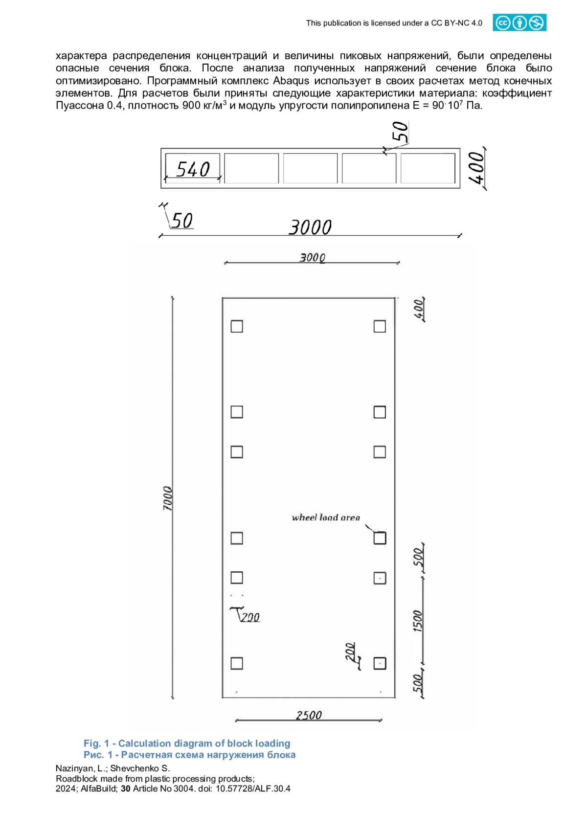
Объектом исследования является полимерный дорожный блок, изготовленный из продуктов переработки пластмасс. Исследование направлено на определение оптимальных геометрических и конструктивных характеристик полимерного блока, которые обеспечат необходимую прочность при нагрузке от транспортных средств. Методы. Моделирование основных напряжений в блоке проводилось в программном комплексе Simula Abacus. Результаты. Анализ распределения сжимающих напряжений в исходной зоне поперечного сечения показал, что пики сжимающих напряжений достигаются во внутренних углах блока в местах приложения нагрузки. Концентрация напряжений возникает, когда поперечное сечение блока резко меняется. Более плавный переход от одного сечения к другому позволяет значительно снизить возникающую концентрацию напряжений. Скругление углов увеличивает расход материала на блок, что требует определения оптимального радиуса скругления.

The object of research is a polymer roadblock made from plastic processing products. The study is aimed at determining the optimal geometric and structural characteristics of the polymer block, which will provide the necessary strength when loaded by cars. Methods. Modeling of the main stresses of the block took place in the Simula Abacus software package. Results. Analysis of the distribution of compressive stresses in the initial cross-sectional area showed that peaks of compressive stresses are achieved in the internal corners of the block at the places where the load is applied. Stress concentration occurs when the cross section of the block changes abruptly. A smoother transition from one section to another made it possible to significantly reduce the resulting stress concentration. Rounding corners increases the material consumption of the block, which requires determining the optimal rounding radius.

Ключевые фразы: пластмассовые дороги, моделирование, abaqus, анализ концентрации напряжений, распределение напряжений
Автор (ы): Назинян Левон Гайкович, Шевченко Сергей Михайлович
Журнал: ALFABUILD

Предпросмотр статьи

Идентификаторы и классификаторы

УДК
004.94. Компьютерное моделирование
Для цитирования:
НАЗИНЯН Л. Г., ШЕВЧЕНКО С. М. ДОРОЖНОЕ ЗАГРАЖДЕНИЕ, ИЗГОТОВЛЕННОЕ ИЗ ПРОДУКТОВ ПЕРЕРАБОТКИ ПЛАСТМАСС // ALFABUILD. 2024. № 1 (30)
Текстовый фрагмент статьи